⸻
Brief: Build a Brewery / Beer garden — Response: Build a Clearing.
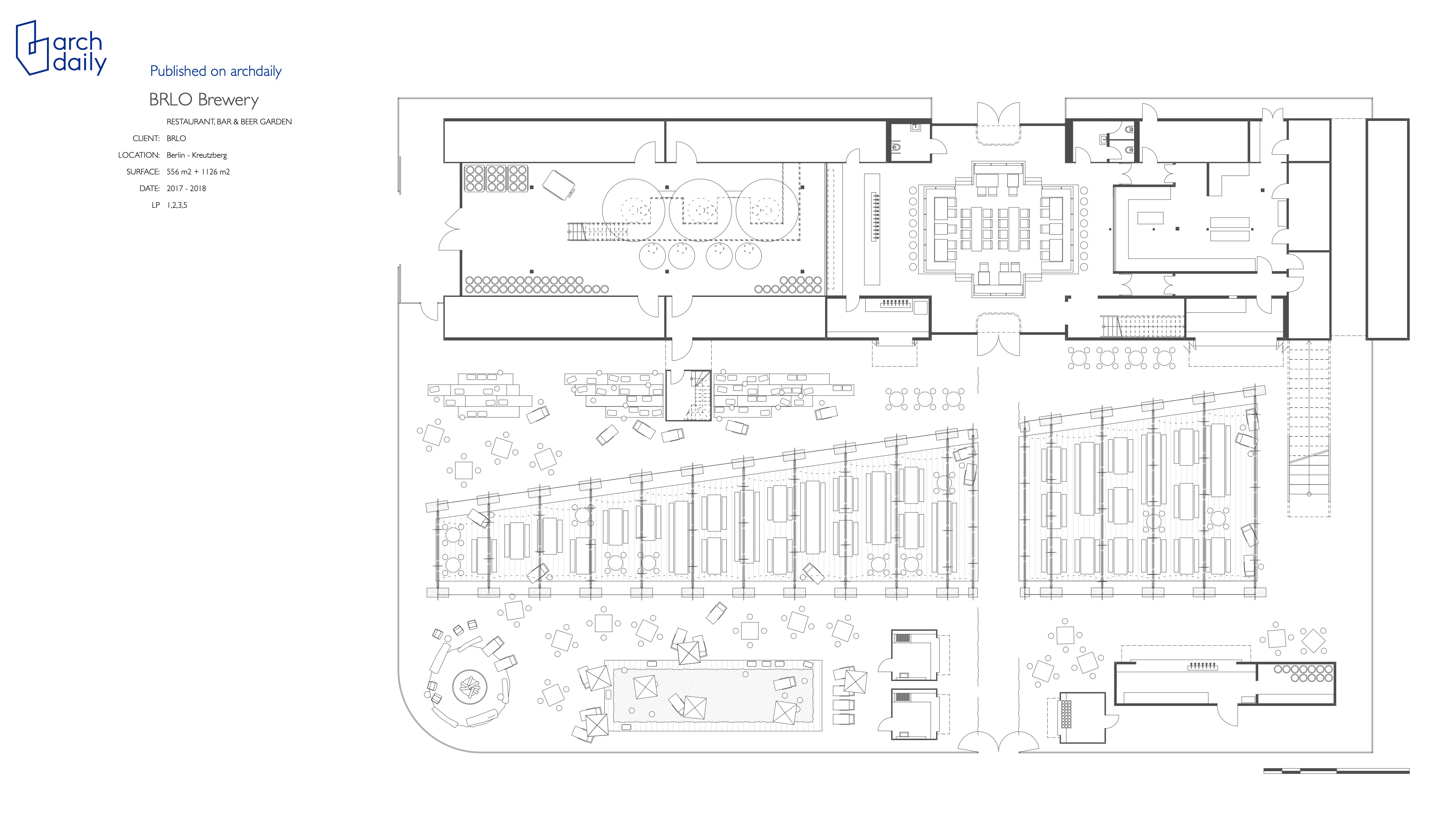
The brief wasn't a brief. It was a feeling. Build something that makes people forget they're in a city of four million. Something rough enough to be honest. Something warm enough to stay. Park am Gleisdreieck—once one of Berlin's largest railway junctions, a tangle of tracks and platforms the city eventually reclaimed as parkland—sits at the edge of one of the most charged urban landscapes in Europe. BRLO chose this location deliberately. A craft brewery doesn't belong in a polished neighbourhood. It belongs somewhere with memory, friction, and sky.
⸻
⸻
The Site: Where Berlin Goes to Breathe
There's a place in Kreuzberg where the city exhales. Not a square. Not a plaza. A clearing—left behind by trains, taken back by trees. You don't enter the park. You drift into it. BRLO sits where the asphalt ends and the grass begins.
Trash and Craft
BRLO is young, direct, irreverent, Berlinerisch. The architecture had to match. Not polished. Not curated. Not trying too hard. The building is assembled from shipping containers—stacked, rotated, welded into a form that is simultaneously industrial sculpture and functional machine. Dark corrugated steel wraps the exterior. A steel tower rises above the roofline—part landmark, part exhaust, part provocation. Inside: metal mesh, exposed structure, massive timber, hard light. The ceiling grid multiplies reflections. It's the kind of interior that doesn't soften anything—and doesn't need to.
⸻
⸻
The Garden: A Clearing, Not a Terrace
The outdoor space is where the tension releases. Not a terrace. Not a patio. Not a hospitality product. A clearing in nature. A place where you arrive and slow down. Hop plants climb diagonal timber posts, their vines weaving through rope canopies that filter the Berlin sky. Water tanks—repurposed as furniture—glow from within at night. Something between a campfire circle and a field installation. Long wooden benches on raised decks for communal seating. High bar tables at the edges for those who want to stand and watch. Striped deckchairs across bark-covered ground for those who simply want to lie down and stay. The space connects without forcing. Every zone has its own comfort. Every seat has its own relationship to the whole.
⸻
⸻
Between Two Worlds
The whole composition—building, interior, garden—is an act of balance. Industrial tension and human warmth. Sharp light and loose arrangement. A brand that is young, a city that is very old. BRLO doesn't try to resolve the contradiction. It lives inside it.
⸻
⸻
"Berlin doesn't do comfortable. It does honest. This space tries to do both."
⸻
PHOTOS - DONE STUDIO