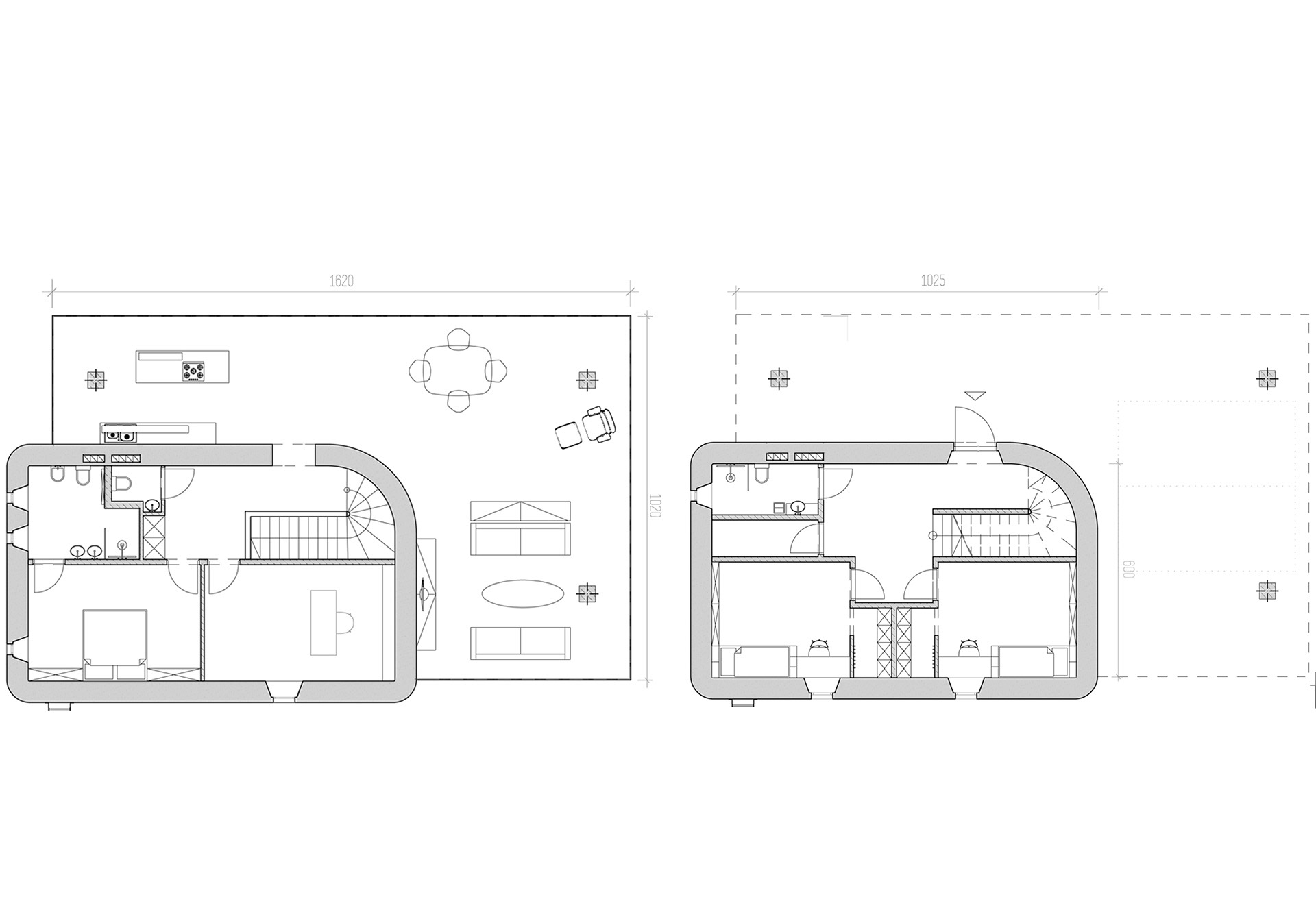
The final version of a residential building, showing the scheme of life in the community, as a basic element of life in society.
The final version of a residential building, showing the scheme of life in the community, as a basic element of life in society.